Talbrücke Pilsach – Baubeginn markiert nächsten Projektschritt
[Pilsach, 22.01.2026] Mit dem Start der Bauarbeiten für die Talbrücke Pilsach beginnt die Umsetzung eines der bedeutenden Ersatzneubauten entlang der Bundesautobahn A 3. KREBS+KIEFER hat im Vorfeld zentrale Planungsleistungen erbracht und damit die Grundlage für den jetzt gestarteten Neubau geschaffen. Unsere Teams verantworteten die Objektplanung Ingenieurbauwerke in den Leistungsphasen 1–3, 5 und 6 sowie die Tragwerksplanung in den Leistungsphasen 2–6. Zusätzlich übernahmen wir die Planung des Rückbausund der Baubehelfe, erstellten 3D Visualisierungen und unterstützten den gesamten Prozess in allen Leistungsphasen durch BIM-basierte Arbeitsmethoden.
Der Neubau ersetzt die bestehende Talbrücke aus dem Jahr 1971, deren verbleibende Nutzungsdauer im Rahmen einer Nachrechnung bis 2028 begrenzt wurde. Die Brücke liegt zwischen Nürnberg und Regensburg in unmittelbarer Nähe der Ortschaft Pilsach. Sie überspannt unter anderem den Bach Pilsach, die Bundesstraße B 299, die Kreisstraße NM 21 sowie Geh- und Radwege. Das Umfeld ist zudem durch geschützte Waldflächen, Biotope und verschiedene angrenzende Nutzungen geprägt, darunter ein Gewerbegebiet und ein Sportgelände.
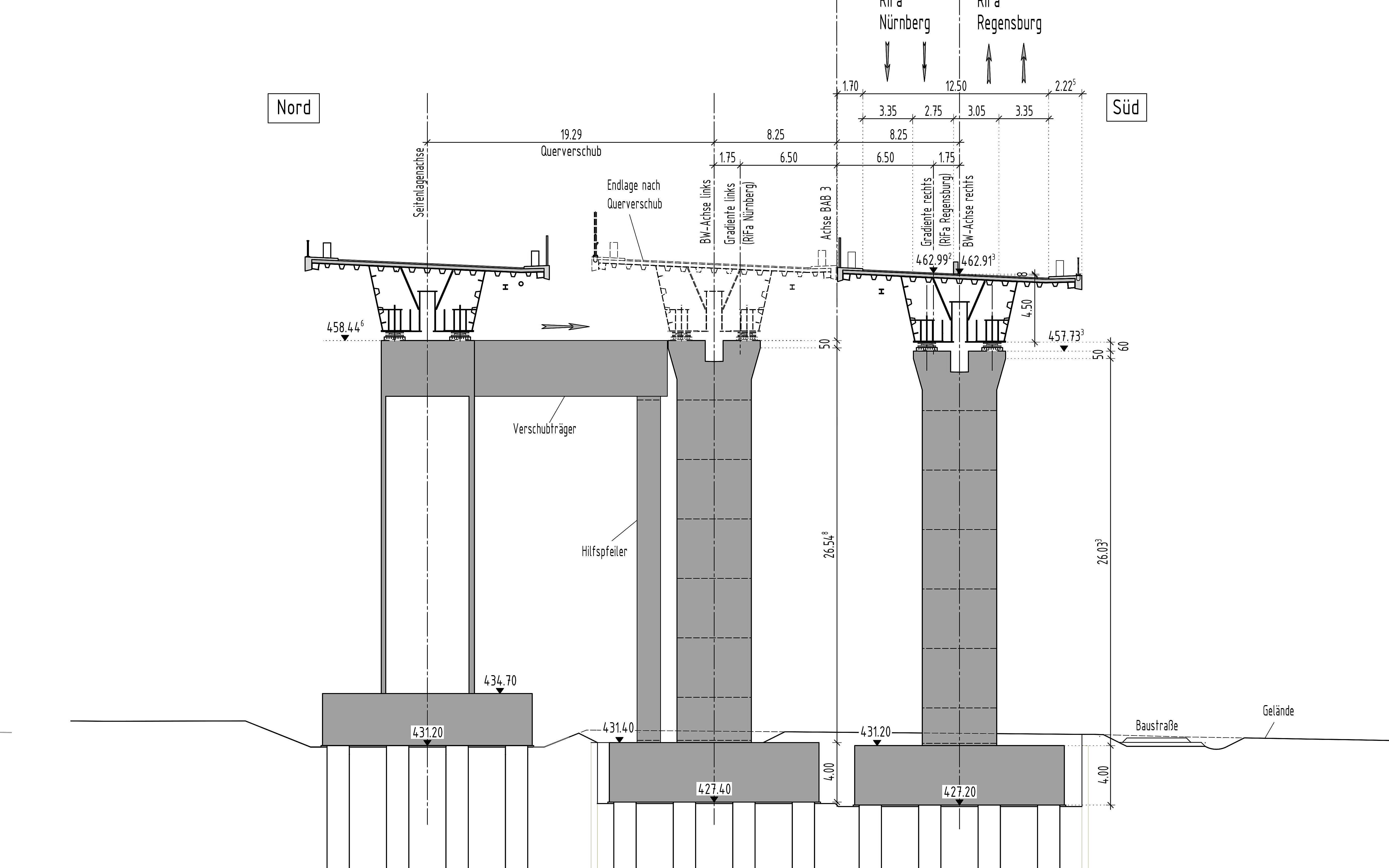
Die Vorzugsvariante sieht einen einteiligen, begehbaren Stahlverbundhohlkasten mit sieben Feldern und einer Gesamtlänge von 645 Metern vor. Die Konstruktion wird im Taktschiebeverfahren hergestellt. Die Stützweiten betragen 70 m, fünfmal 100 m sowie 75 m. Mit einer Breite zwischen den Geländern von 32,23 Metern entsteht eine Gesamtbrückenfläche von über 20.000 Quadratmetern.
Aufgrund des einteiligen Bestandsüberbaus erfolgt die Herstellung des ersten Bauabschnitts (Fahrtrichtung Nürnberg) in Seitenlage. Nach dem Rückbau des Bestandsbauwerks und der Herstellung des zweiten Teilbauwerks der Fahrtrichtung Regensburg wird der Überbau des ersten Bauabschnitts in Querrichtung in die Endlage verschoben. Auf der Nordseite werden im Bereich der Brücke und der Strecke vor und hinter den Widerlagern ca. 3 Meter hohe Lärmschutzwände vorgesehen, die den Anforderungen des Verkehrslärmschutzes auf diesem vielbefahrenen Abschnitt Rechnung tragen.
Bedingt durch die Lage im sensiblen Umfeld waren im Planungsprozess detaillierte Untersuchungen zu Bauzuständen, Zuwegungen und Bauabläufen erforderlich. Zu den besonderen Leistungen von KREBS+KIEFER zählten unter anderem die Bemessung des Vorbauschnabels, die Planung der Entwässerung sowie die detaillierte Abbildung aller Bauphasen gemäß der BIM-Methode.
Mit dem jetzt begonnenen Bau rückt der Ersatzneubau planmäßig voran.



